- 新築一戸建て・分譲住宅(ブルーミングガーデン)TOP
- 関東>
- 埼玉県
- 埼玉県北本市の物件一覧
- ブルーミングガーデン 北本市中丸7丁目12棟-長期優良住宅-
ブルーミングガーデン 北本市中丸7丁目12棟-長期優良住宅- 特設サイトを公開致しました。
ブルーミングガーデン
北本市中丸7丁目12棟-長期優良住宅-
- 更新日
- 2026年5月2日
- 次回更新予定日
- 2026年5月16日
- 現場番号
- 20075010
- 取引有効期限
- 2026年5月10日
- 12区画販売中/全12区画
- 長期優良住宅
- バーチャル内覧可
- 完成前
- 販売価格
- 3,290万円 ~ 4,780万円 (税込)ローンシミュレーション
- ローン時の
お支払い目安 -
月々:約9.3万円~
- 月々の支払目安は頭金・ボーナス時返済0円、返済期間35年、みずほ銀行の変動金利1.025%で計算しています。
- シミュレーション結果は、あくまでも目安となります。実際の購入可能金額をお約束するものではありません。
- 金利は、変動金利(元利均等返済方式)で計算しています。返済金利については、各金融機関に詳細をご確認ください。
- ローン契約時には、別途手数料などの諸経費が必要となります。
- 所在地
- 埼玉県北本市中丸7丁目256番(地番)周辺マップを見る
- 土地面積
- 132.50~188.10㎡
- 建物面積
- 100.60~109.93㎡
- 間取り
- 3LDK~4LDK
- カースペース
- 2 ~ 3台
- 完成予定時期
-
2026年6月下旬: 1号棟、2号棟、3号棟、4号棟、5号棟、6号棟、7号棟
2026年7月下旬: 8号棟、9号棟、10号棟、11号棟、12号棟
- 引渡可能時期
-
2026年7月下旬: 1号棟、2号棟、3号棟、4号棟、5号棟、6号棟、7号棟
2026年8月下旬: 8号棟、9号棟、10号棟、11号棟、12号棟
- エネルギー消費性能
- ★★★★★★(削減率50%達成)
- 断熱性能
- レベル5(7段階)
1 /
- 24時間換気
- カースペース2台以上
- 土地40坪以上
- テレビモニタ付インターホン
- フローリング
- 折上天井
- 間取変更可
- 低層地域
- 外水栓
- 耐震等級3
- 主寝室8帖以上
- LED照明(玄関・廊下・キッチン・トイレ・洗面所)
- 大型開発現場
- フラット35
- ポップアップ天井
- 火災報知器
- Wロック電池錠
- 室内物干
- アクセントクロス(一部)
- 制震ダンパー
- 生活施設10分以内
- BELS取得
- 太陽光パネル
- 長期優良住宅
- 人造大理石システムキッチン(天板)
- 対面式キッチン
- 食器洗浄乾燥機
- 床下収納
- シャワー蛇口
- 浄水器蛇口
- システムバス
- ユニットバス
- 浴室換気乾燥機
- 給湯器
- ハンドシャワー付き洗面化粧台
- 温水洗浄便座1階
- ベタ基礎
- 低ホルムアルデヒド
- 在来工法
- 断熱仕様玄関ドア
- 全室LOW-Eペアガラス
- 樹脂アングル
- エコジョーズ
- カウンターキッチン
- 可動棚
- 節水型トイレ
- 設計住宅性能評価付き
- スーパーまで徒歩圏内
- 公園まで徒歩圏内
- 小学校まで徒歩圏内
- 病院まで徒歩圏内
- トイレ2箇所
- LDK15帖以上
【省エネ】太陽光パネル設置物件!
住宅性能評価W取得と税制待遇の長期優良住宅・BELS認定!
平日・休日、時間帯問わずご案内可能です!
まずはお気軽にお問い合わせください!
JR高崎線・JR湘南新宿ライン「北本」駅バス・自転車利用可!
東小学校徒歩10~11分、東中学校徒歩30~32分!
お子様の通学も安心です♪
◎物件のポイント
敷地は、40坪~!駐車スペースは『2~3台』!
小学校、保育園、スーパー、コンビニ、クリニックなど徒歩14分以内
◆収納も沢山あります!
・小型自転車やベビーカーなど玄関がスッキリ片付く『玄関土間収納』(号棟による)
・季節ものなど収納たっぷり出来る『ウォークインクローゼット』(号棟による)
◆こだわりの内装!
・LDKは空間演出した折り上げ天井
・開放感のある『アイランド風オープンキッチン』
・2階の主寝室は、仕切れる『主寝室可変型』タイプです
・勉強や仕事に便利な空間『テレワークスペース』(号棟による)
・客室間や布団を敷いて寝室など用途が幅広い『和室』(号棟による)
・カウンターの下に足を入れられて掘りごたつ風に使え、テレワークやお子様の勉強スペースに最適な『マルチスキップ』(号棟による)
◆便利な設備!
・掃除に便利な『バルコニー水栓』
・雨の日でも洗濯物が干せる『室内物干』
・梅雨時や花粉の時期のお洗濯も安心『浴室乾燥暖房機』
スマートフォンで見やすい特設サイトはこちら
https://www.e-blooming.com/bukken/20075010/
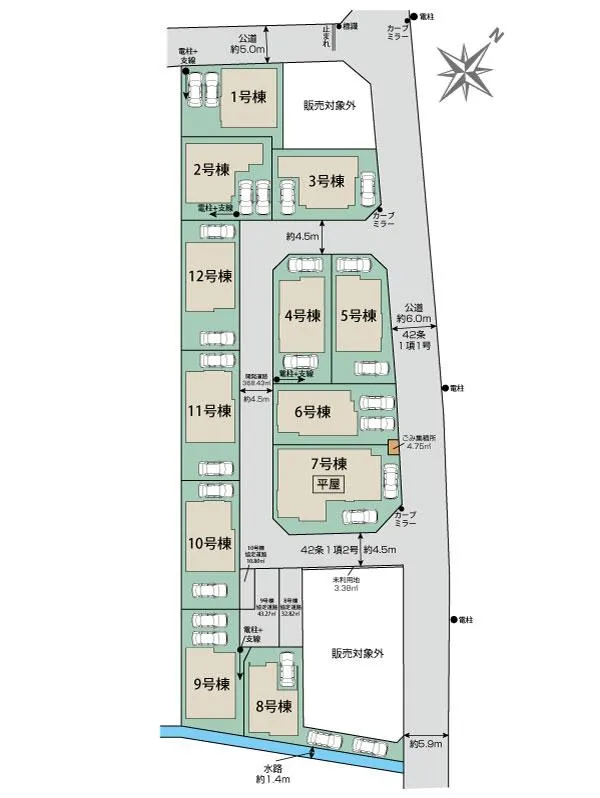
全体区画図・プラン詳細
- 1号棟
詳しく見る3LDK(可変型間取)+ウォークインクローゼット
- 土地面積
- 132.51㎡
- 建物面積
- 103.51㎡
- カースペース
- 2台
- 2号棟
詳しく見る3LDK(可変型間取)
- 土地面積
- 132.50㎡
- 建物面積
- 103.71㎡
- カースペース
- 2台
- 3号棟
詳しく見る3LDK(可変型間取)
- 土地面積
- 132.51㎡
- 建物面積
- 100.60㎡
- カースペース
- 2台
- 4号棟
詳しく見る3LDK(可変型間取)
- 土地面積
- 132.77㎡
- 建物面積
- 104.53㎡
- カースペース
- 2台
- 5号棟
詳しく見る3LDK(可変型間取)
- 土地面積
- 132.75㎡
- 建物面積
- 104.53㎡
- カースペース
- 2台
- 6号棟
詳しく見る3LDK(可変型間取)+ウォークインクローゼット+マルチスキップ(LDKに含む)
- 土地面積
- 132.77㎡
- 建物面積
- 106.97㎡
- カースペース
- 2台
- 建物面積に車庫部分(5.79m2)を含む
- 7号棟
詳しく見る3LDK(可変型間取)+ウォークインクローゼット
- 土地面積
- 188.10㎡
- 建物面積
- 107.76㎡
- カースペース
- 3台
- 8号棟
詳しく見る3LDK(可変型間取)+ウォークインクローゼット+土間収納(SIC)
- 土地面積
- 165.52㎡
- 建物面積
- 109.93㎡
- カースペース
- 3台
- 建物面積に車庫部分(9.93m2)を含む、敷地面積に協定道路部分(32.82m2)を含む
- 9号棟
詳しく見る4LDK(可変型間取)+土間収納(SIC)
- 土地面積
- 176.04㎡
- 建物面積
- 108.95㎡
- カースペース
- 2台
- 敷地面積に協定道路部分(43.27m2)を含む
- 10号棟
詳しく見る4LDK(可変型間取)+ウォークインクローゼット
- 土地面積
- 143.67㎡
- 建物面積
- 103.44㎡
- カースペース
- 2台
- 敷地面積に協定道路部分(10.80m2)を含む
- 11号棟
詳しく見る4LDK(可変型間取)+ウォークインクローゼット
- 土地面積
- 132.87㎡
- 建物面積
- 103.44㎡
- カースペース
- 2台
- 12号棟
詳しく見る4LDK(可変型間取)
- 土地面積
- 132.88㎡
- 建物面積
- 103.92㎡
- カースペース
- 2台
Why Blooming Garden
間取りや価格だけではわからない
“選ばれる理由”
※ コメントをタップすると詳細を御覧いただけます ※
周辺環境・ルートを調べる
-
- 最寄駅からの道順を調べる
- 高崎線「北本」駅
から物件までの道順を見る
※GoogleMapの自動計算による所要時間のため、表記時間と異なる場合がございます。
周辺施設
物件概要
| 総区画数 | 12区画 └分譲住宅:12区画 |
販売区画数 | 12区画 └分譲住宅:12区画 |
|---|---|---|---|
| 建物面積 | 100.60~109.93㎡ | ||
| 販売価格 | 分譲住宅 3,290万円 ~ 4,780万円 (税込) | 最多価格帯 | 分譲住宅: 3,700万円台(3戸) |
| ローン時の お支払い目安 |
月々:約9.3万円 ~
|
||
| 所在地(地番) | 埼玉県北本市中丸7丁目256番(地番) | ||
|---|---|---|---|
| 都市計画 | 市街化区域 | 用途地域 | 第一種低層住居専用地域 |
| 建ぺい率 | 50% | 容積率 | 80% |
| 接道 | 北5.0m公道、東6.0m公道 | ||
| その他持分 |
【未利用地】3.38㎡×1/1(8号棟) |
||
| 土地面積 | 132.50~188.10m² | 建物面積 | 100.60~109.93㎡ |
|---|---|---|---|
| 間取り | 3LDK~4LDK | 構造 | 木造2階建(在来工法): 1号棟、2号棟、3号棟、4号棟、5号棟、6号棟、8号棟、9号棟、10号棟、11号棟、12号棟 木造平屋建(在来工法): 7号棟 |
| 建築確認番号 | 第25UDI1W建14030号 他 | カースペース | 2 ~ 3台 |
| 交通 | 高崎線,湘南新宿ライン高海 北本駅までバス18分 二ツ家バス停まで徒歩9分 または 自転車3.30km(14分) |
||
| 設備 | 公営水道、東京電力、都市ガス、本下水 | ||
| 完成予定時期 |
2026年6月下旬: 1号棟、2号棟、3号棟、4号棟、5号棟、6号棟、7号棟 2026年7月下旬: 8号棟、9号棟、10号棟、11号棟、12号棟 |
引渡可能時期 |
2026年7月下旬: 1号棟、2号棟、3号棟、4号棟、5号棟、6号棟、7号棟 2026年8月下旬: 8号棟、9号棟、10号棟、11号棟、12号棟 |
| その他 | 【協定道路】敷地面積に含む 8号棟:32.82m2、9号棟:43.27m2、10号棟:10.80m2 【その他法令】小規模開発 【その他諸費用】8、9、10号棟 地役権登記の費用:4万円(税込) 【備考】太陽光発電システムに伴う東京ガスが提供するサービス契約が必須となります。※詳細は営業担当までお問い合わせください。 ※本物件北側は古綾瀬川流域(草加市管理の水路)があります。又、北東側水路敷に既存ゴミ集積所があります。 ※本物件東側道路上に電柱支線があります。 ※水害履歴:本物件は冠水履歴ありませんが、近隣では、冠水履歴があります。 又、今後の気象状況により何らかの被害が出る可能性あります。 ※本物件南側約200m先にそうか公園通り、東側約300m草加産業道路、西側約300mに綾瀬川・日光街道があります。 ※本物件周辺にはアパート・駐車場・マンションが点在しており、騒音・振動・土埃等が発生する可能性がございます。 ※本物件北側には、水路及びゴミ集積所があり、季節の降雨量や状況に依って水位上昇・害虫・臭気等が発生する可能性がございます。 |
||
| 共通事項 | ※【取引態様】売主 ※【防火構造について】在来工法の仕様は下記になります。 ※【2×4工法の仕様について】防火地域の延床面積100平米未満の2階建て2×4工法・準防火地域の3階建て2×4工法:準耐火構造になります。(上記以外の2×4工法:省令準耐火構造になります。) ※一部写真において、家具等をCGで加工している場合がございます。またCG加工はイメージです。実際の現況とは異なります。CG内の配置・演出例であり、現況とは異なります。 ※写真、CG内の家具・小物は売買対象に含まれません。 ※準備中となっている号棟は、建築確認番号の取得はできておりません。 ※自転車、車の所要時間は実測による時間になります。 |
||
| 所属団体 | (社)全日本不動産協会会員 (公社)不動産保証協会会員 (一社)全国住宅産業協会会員 (一社)不動産流通経営協会会員 (社)日本ツーバイフォー建築協会会員 (公社)首都圏不動産公正取引協議会加盟業者 (公財)東日本不動産流通機構会員 |
||
資料を取り寄せてゆっくり検討したい
実際に物件や周辺環境を見て検討したい、
などお気軽にご利用ください!
資料を取り寄せる/現地を見学する -
- お気に入り機能
- この物件を追加
-
- 価格等の更新情報を知りたい
- 更新メールを受信
-
- お電話でのお問い合わせ
-
048-960-5512
- 株式会社東栄住宅 越谷営業所
- 営業時間:9:30~18:30 定休日:毎週火曜日・水曜日・年末年始等
よくあるご質問
-
-
ブルーミングガーデンってなに?
-
東栄住宅のブルーミングガーデンは、クラスを超えた高品質・高性能の住宅でありながら、お求めやすい価格で提供をする、総合力の高さとコストパフォーマンスには絶対の自信のある分譲住宅ブランドです。
-
-
-
地震には強いの?
-
東栄住宅のブルーミングガーデンは、最高の耐震等級3を全棟で取得しています。耐震等級3は「数百年に一度の地震に対して、倒壊しない、崩壊しない」という基準のさらに1.5倍の耐震力を達成している、と認定された住宅に付与されるものです。
-
-
-
長期優良住宅って?
-
長期優良住宅とは、「長い期間、安心して、快適に暮らせるように」国の定めた技術基準を満たした認定住宅のことで、東栄住宅では、全棟で長期優良住宅基準を満たしています。その多くが認定を受けており、住宅ローンの金利優遇、減税や中古市場の評価額など、安心だけではなく経済的なメリットが大きいことも特徴です。
-
-
-
品質は保証されてるの?
-
分譲住宅は完成した住宅を購入いただくケースが多いため、建設中の施工現場を見る機会があまりありません。お客様に安心してご購入いただくために、東栄住宅では国が定めた第三者機関の厳しい評価を取り入れ、客観的に施工品質を担保しています。
-
-
-
購入後のアフターサービスはちゃんとあるの?
-
東栄住宅のブルーミングガーデンでは、お引き渡し後、10年間の品質保証と定期点検(3ヶ月、2年目、5年目、10年目)を実施しています。また、保証期間の延長を希望されるお客様には、有料メンテナンス工事の実施により、お引き渡しから最大で60年間の品質保証システムもございます。
私たちは、家を売って終わりではなく、お引き渡しからが本当のお付き合いだと考えています。竣工後も住まいに関する疑問からご相談まで、住まいのホームドクターとして、どんなことでもお気軽にご相談ください。
-
-
-
断熱性能や換気システムは大丈夫?
-
東栄住宅のブルーミングガーデンでは、全棟がZEH水準。(断熱等性能等級「5」・一次エネルギー消費量等級は「6」を標準で取得)。断熱対策は寒冷地と温暖な地域で異なりますが、断熱窓は全棟Low-E複層ガラス採用(沖縄地区除く)、 断熱材、断熱ドア、高断熱浴槽の採用など、冷暖房のエネルギー消費が少なく、また部屋によっての温度差も小さく、結露が発生しにくい。快適で省エネルギーな生活を送ることができます。
-
-
-
地盤調査はしてるの?
-
地盤は後で手を加えることが難しく、また安心して暮らしていただくための大切な土台となるものです。 東栄住宅では地盤調査に重点を置き、社内に地盤のスペシャリスト部門の設置、地盤判定のトリプルチェックと、調査結果を「地盤判定書」として購入者様にお渡ししています。その自信が「全棟地盤10年保証」を実現しています。
-
-
-
自分好みにカスタマイズできるところはないの?
-
分譲住宅は、完成した実際の物件が見られることが魅力のひとつですが、東栄住宅のブルーミングガーデンでは、着工~上棟までにご契約いただくことで、フロアやドア、家の外観や玄関のトビラなど無料(内容やご契約時期に依る)でお気に入りのカラーに変更することができます。
また、すこし手を加えるだけで満足度がアップする「新築プチリフォーム」の事例も紹介していますので、ぜひご覧ください。
-
-
-
実際に購入して住んだ人の感想は聞けないの?
-
ご購入者さまのインタビューを多数ご紹介しています。ぜひご覧ください。
-














































