- 新築一戸建て・分譲住宅(ブルーミングガーデン)TOP
- 九州・沖縄>
- 福岡県
- 福岡県福岡市城南区の物件一覧
- ブルーミングガーデン 福岡市城南区梅林5丁目3棟
ブルーミングガーデン
福岡市城南区梅林5丁目3棟
- 更新日
- 2026年1月12日
- 次回更新予定日
- 2026年1月26日
- 現場番号
- 84074037
- 取引有効期限
- 2026年1月18日
- 3区画販売中/全3区画
- バーチャル内覧可
- 完成前
- 販売価格
- 4,180万円 ~ 4,380万円 (税込)ローンシミュレーション
- ローン時の
お支払い目安 -
月々:約11.4万円~
- 月々の支払目安は頭金・ボーナス時返済0円、返済期間35年、みずほ銀行の変動金利0.775%で計算しています。
- シミュレーション結果は、あくまでも目安となります。実際の購入可能金額をお約束するものではありません。
- 金利は、変動金利(元利均等返済方式)で計算しています。返済金利については、各金融機関に詳細をご確認ください。
- ローン契約時には、別途手数料などの諸経費が必要となります。
- 所在地
- 福岡県福岡市城南区梅林5丁目219番4、9、17(地番)周辺マップを見る
- アクセス
- 福岡市七隈線 梅林駅まで徒歩7分
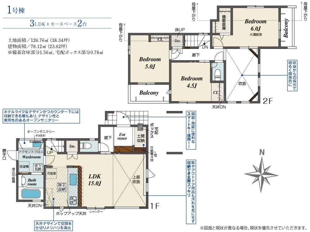
- 土地面積
- 126.76~131.57㎡
- 建物面積
- 78.12~86.87㎡
- 間取り
- 2LDK~3LDK
- カースペース
- 2台
- 完成予定時期
- 2026年1月中旬
- 引渡可能時期
- 2026年2月中旬
- エネルギー消費性能
- ★★★(削減率20%達成)
- 断熱性能
- レベル5(7段階)
1 /
- 24時間換気
- カースペース2台以上
- 並列駐車
- 全室南向き
- 収納下駄箱(鏡付)
- テレビモニタ付インターホン
- フローリング
- ワイドバルコニー
- 吹抜
- 全室南窓
- 低層地域
- 外水栓
- 耐震等級3
- LED照明(玄関・廊下・キッチン・トイレ・洗面所)
- フラット35
- 中学校10分以内
- ポップアップ天井
- 保育園10分以内
- 火災報知器
- 駅徒歩10分以内
- Wロック電池錠
- 制震ダンパー
- 公共施設10分以内
- 公園10分以内
- 接道6m以上
- BELS取得
- 人造大理石システムキッチン(天板)
- 対面式キッチン
- 食器洗浄乾燥機
- 床下収納
- シャワー蛇口
- 浄水器蛇口
- システムバス
- ユニットバス
- 浴室換気乾燥機
- 給湯器
- ハンドシャワー付き洗面化粧台
- 温水洗浄便座1階
- 温水洗浄便座2階
- ベタ基礎
- 低ホルムアルデヒド
- 在来工法
- 断熱仕様玄関ドア
- 全室LOW-Eペアガラス
- 樹脂アングル
- 手すり付階段
- エコジョーズ
- カウンターキッチン
- 可動棚
- 節水型トイレ
- 南面バルコニー
- 全室2面採光
- 全室フローリング
- 設計住宅性能評価付き
- スーパーまで徒歩圏内
- 公園まで徒歩圏内
- 病院まで徒歩圏内
- トイレ2箇所
- LDK15帖以上
- 公園400m以内
- コンビニ400m以内
LDKに吹抜や折上天井を採用することで天井が高くなるため、
開放的な空間を演出することが出来ます!
全体区画図・プラン詳細
Why Blooming Garden
間取りや価格だけではわからない
“選ばれる理由”
※ コメントをタップすると詳細を御覧いただけます ※
周辺環境・ルートを調べる
-
- 最寄駅からの道順を調べる
- 福岡市七隈線「梅林」駅
から物件までの道順を見る
※GoogleMapの自動計算による所要時間のため、表記時間と異なる場合がございます。
周辺施設
物件概要
| 総区画数 | 3区画 └分譲住宅:3区画 |
販売区画数 | 3区画 └分譲住宅:3区画 |
|---|---|---|---|
| 建物面積 | 78.12~86.87㎡ | ||
| 販売価格 | 分譲住宅 4,180万円 ~ 4,380万円 (税込) | ||
| ローン時の お支払い目安 |
月々:約11.4万円 ~
|
||
| 所在地(地番) | 福岡県福岡市城南区梅林5丁目219番4、9、17(地番) | ||
|---|---|---|---|
| 都市計画 | 市街化区域 | 用途地域 | 第一種低層住居専用地域 |
| 建ぺい率 | 50% | 容積率 | 80% |
| 接道 | 東8.1m公道 | ||
| 土地面積 | 126.76~131.57m² | 建物面積 | 78.12~86.87㎡ |
|---|---|---|---|
| 間取り | 2LDK~3LDK | 構造 | 木造2階建(在来工法) |
| 建築確認番号 | 第R07SHC115561号 他 | カースペース | 2台 |
| 交通 | 福岡市七隈線 梅林駅まで徒歩7分 |
||
| 設備 | 公営水道、九州電力、個別プロパンガス、本下水 | ||
| 完成予定時期 | 2026年1月中旬 | 引渡可能時期 | 2026年2月中旬 |
| その他 | 【その他法令】宅地造成等工事規制区域、戸建住環境形成地区 |
||
| 共通事項 | ※【取引態様】売主 ※【防火構造について】在来工法の仕様は下記になります。 ※【2×4工法の仕様について】防火地域の延床面積100平米未満の2階建て2×4工法・準防火地域の3階建て2×4工法:準耐火構造になります。(上記以外の2×4工法:省令準耐火構造になります。) ※一部写真において、家具等をCGで加工している場合がございます。 ※家具付き販売ではございません。 ※準備中となっている号棟は、建築確認番号の取得はできておりません。 |
||
| 所属団体 | (社)全日本不動産協会会員 (公社)不動産保証協会会員 (一社)全国住宅産業協会(全住協) (一社)不動産流通経営協会会員 (社)日本ツーバイフォー建築協会会員 (一社)九州不動産公正取引協議会 (公財)西日本不動産流通機構 |
||
資料を取り寄せてゆっくり検討したい
実際に物件や周辺環境を見て検討したい、
などお気軽にご利用ください!
資料を取り寄せる/現地を見学する -
- お気に入り機能
- この物件を追加
-
- 価格等の更新情報を知りたい
- 更新メールを受信
-
- お電話でのお問い合わせ
-
092-554-1478
- 株式会社東栄住宅 福岡南営業所
- 営業時間:9:30~18:30 定休日:毎週火、水曜日・年末年始等
よくあるご質問
-
-
ブルーミングガーデンってなに?
-
東栄住宅のブルーミングガーデンは、クラスを超えた高品質・高性能の住宅でありながら、お求めやすい価格で提供をする、総合力の高さとコストパフォーマンスには絶対の自信のある分譲住宅ブランドです。
-
-
-
地震には強いの?
-
東栄住宅のブルーミングガーデンは、最高の耐震等級3を全棟で取得しています。耐震等級3は「数百年に一度の地震に対して、倒壊しない、崩壊しない」という基準のさらに1.5倍の耐震力を達成している、と認定された住宅に付与されるものです。
-
-
-
長期優良住宅って?
-
長期優良住宅とは、「長い期間、安心して、快適に暮らせるように」国の定めた技術基準を満たした認定住宅のことで、東栄住宅では、全棟で長期優良住宅基準を満たしています。その多くが認定を受けており、住宅ローンの金利優遇、減税や中古市場の評価額など、安心だけではなく経済的なメリットが大きいことも特徴です。
-
-
-
品質は保証されてるの?
-
分譲住宅は完成した住宅を購入いただくケースが多いため、建設中の施工現場を見る機会があまりありません。お客様に安心してご購入いただくために、東栄住宅では国が定めた第三者機関の厳しい評価を取り入れ、客観的に施工品質を担保しています。
-
-
-
購入後のアフターサービスはちゃんとあるの?
-
東栄住宅のブルーミングガーデンでは、お引き渡し後、10年間の品質保証と定期点検(3ヶ月、2年目、5年目、10年目)を実施しています。また、保証期間の延長を希望されるお客様には、有料メンテナンス工事の実施により、お引き渡しから最大で60年間の品質保証システムもございます。
私たちは、家を売って終わりではなく、お引き渡しからが本当のお付き合いだと考えています。竣工後も住まいに関する疑問からご相談まで、住まいのホームドクターとして、どんなことでもお気軽にご相談ください。
-
-
-
断熱性能や換気システムは大丈夫?
-
東栄住宅のブルーミングガーデンでは、全棟がZEH水準。(断熱等性能等級「5」・一次エネルギー消費量等級は「6」を標準で取得)。断熱対策は寒冷地と温暖な地域で異なりますが、断熱窓は全棟Low-E複層ガラス採用(沖縄地区除く)、 断熱材、断熱ドア、高断熱浴槽の採用など、冷暖房のエネルギー消費が少なく、また部屋によっての温度差も小さく、結露が発生しにくい。快適で省エネルギーな生活を送ることができます。
-
-
-
地盤調査はしてるの?
-
地盤は後で手を加えることが難しく、また安心して暮らしていただくための大切な土台となるものです。 東栄住宅では地盤調査に重点を置き、社内に地盤のスペシャリスト部門の設置、地盤判定のトリプルチェックと、調査結果を「地盤判定書」として購入者様にお渡ししています。その自信が「全棟地盤10年保証」を実現しています。
-
-
-
自分好みにカスタマイズできるところはないの?
-
分譲住宅は、完成した実際の物件が見られることが魅力のひとつですが、東栄住宅のブルーミングガーデンでは、着工~上棟までにご契約いただくことで、フロアやドア、家の外観や玄関のトビラなど無料(内容やご契約時期に依る)でお気に入りのカラーに変更することができます。
また、すこし手を加えるだけで満足度がアップする「新築プチリフォーム」の事例も紹介していますので、ぜひご覧ください。
-
-
-
実際に購入して住んだ人の感想は聞けないの?
-
ご購入者さまのインタビューを多数ご紹介しています。ぜひご覧ください。
-



































